Residential
Concept+Design
Retail
home
Residential
Concept+Design
Retail
home
/
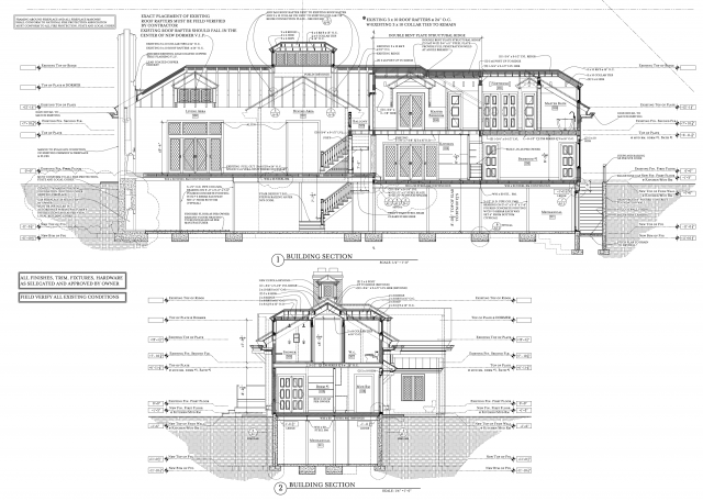
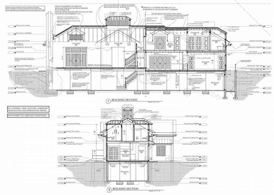
Residential
/
Wayside
Wayside
Historic District In Construction